4.50 trên 5 dựa trên 2 đánh giá
(2 đánh giá của khách hàng)
“Vòi sen cây AMERICAN STANDARD A-6110.978.904 Moonshadow D200” đã được thêm vào giỏ hàng. Xem giỏ hàng
Vòi sen bồn tắm TOTO TBG10305AA gắn bồn 3 lỗ GB nóng lạnh
| Mã sản phẩm | TBG10305AA |
| Kiểu sen | Vòi sen xả bồn tắm gắn bồn |
| Chất liệu | Đồng mạ Crom & Niken |
| Bảo hành | 2 năm |
| Xuất xứ | Chính Hãng TOTO |
[section class=”tailieudinhkem”]
[title text=”Tài liệu đính kèm”]
- Thông số kỹ thuật TBG10305 AA
- Hướng dẫn lắp đặt TBG10305 AA
- Hướng dẫn sử dụng TBG10305 AA
- Bản vẽ 3D TBG10305 AA
- Bản vẽ 2D TBG10305 AA
[/section]
17.710.000₫ Giá gốc là: 17.710.000₫.14.160.000₫Giá hiện tại là: 14.160.000₫.
Tính năng
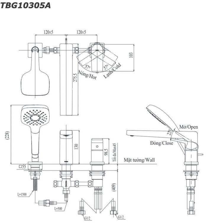
Thông số kỹ thuật Vòi sen bồn tắm TOTO TBG10305AA gắn bồn 3 lỗ
- Mã sản phẩm: TBG10305AA (Mã cũ : TBG10305A)
- Bộ sưu tập: GB
- Thương hiệu: Thiết bị vệ sinh TOTO
- Kiểu sen: sen bồn tắm gắn bồn 3 lỗ 1 tay gạt
- Chất liệu: đồng mạ chrome
- Bảo hành: 2 năm
- Tay sen: TBW02005A
Màu sắc:
- TBG10305AA : màu Chrome
- TBG10305AA #BN: màu Nickel mờ
- TBG10305AA #PN: màu Nickel bóng
- TBG10305AA #BFG: màu vàng Pháp mờ
- TBG10305AA #PFG: màu vàng Pháp bóng
- TBG10305AA #BBR: màu vàng đồng mờ
- TBG10305AA #PBR: màu vàng đồng bóng
- TBG10305AA #MBL: màu đen mờ
Tính năng Vòi sen bồn tắm TOTO TBG10305AA gắn bồn 3 lỗ
- Thiết kế hiện đại, sang trọng
- Sản phẩm được sản xuất bằng đồng nguyên chất không chứa chì mạ crom/niken an toàn cho sức khoẻ.
- COMFORT GLIDE: Lõi sen (óc sen) cấu tạo bằng sứ Ceramic cao cấp hạn chế bám bẩn, chống ăn mòn giúp cần gạt sen bền bỉ đóng mở dễ dàng trong suốt quá trình sử dụng
- Lớp mạ Crom/Niken dày gấp ba lần chống ăn mòn, dễ dàng vệ sinh
- Đầu xả nước trộn khí êm dịu và hạn chế bắn
- Tay sen TBW02005A cỡ lớn tăng áp lực nước 1 chế độ phun. Công nghệ: COMFORT WAVE
Bản vẽ kỹ thuật Vòi sen bồn tắm TOTO TBG10305AA gắn bồn 3 lỗ

Bản-vẽ-kỹ-thuật-Vòi-sen-xả-bồn-tắm-TOTO-TBG10305AA-gắn-bồn-3-lỗ









Dương Khoa (xác minh chủ tài khoản) –
Rất tốt
Nguyễn Đức Toàn (xác minh chủ tài khoản) –
Chất lượng ưu việt, đáng đầu tư.