Tính năng TOTO UT904HN – Bồn tiểu nam
- Thiết kế ít góc cạnh hiện đại.
- Cơ chế xả rộng giúp loại bỏ mọi chất thải.
- Bồn tiểu không góc khuất giúp dễ dàng vệ sinh.
- CEFIONTECT: tráng lớp men công nghệ nano siêu mịn chống bám bẩn, dễ dàng vệ sinh.
- Hệ thống Siphon xả thải hiệu quả, hạn chế tắc và ngăn mùi
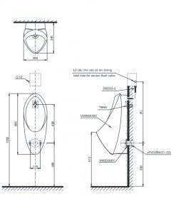
Bản vẽ kích thước TOTO UT904HN – Bồn tiểu nam

Hình ảnh, video thực tế TOTO UT904HN – Bồn tiểu nam
Đang cập nhật…














1 đánh giá cho TOTO UT904HN – Bồn tiểu nam
Chưa có đánh giá nào.