Tính năng TOTO PAY1720HV/TVBF411 – Bồn tắm xây
- Thiết kế hiện đại ,cao cấp sang trọng.
- Tích hợp tay vịn tiện lợi, an toàn
- Bề mặt đáy bồn tắm chống trơn trượt .
- Chất liệu nhựa tổng hợp cao cấp, độ bền cao.
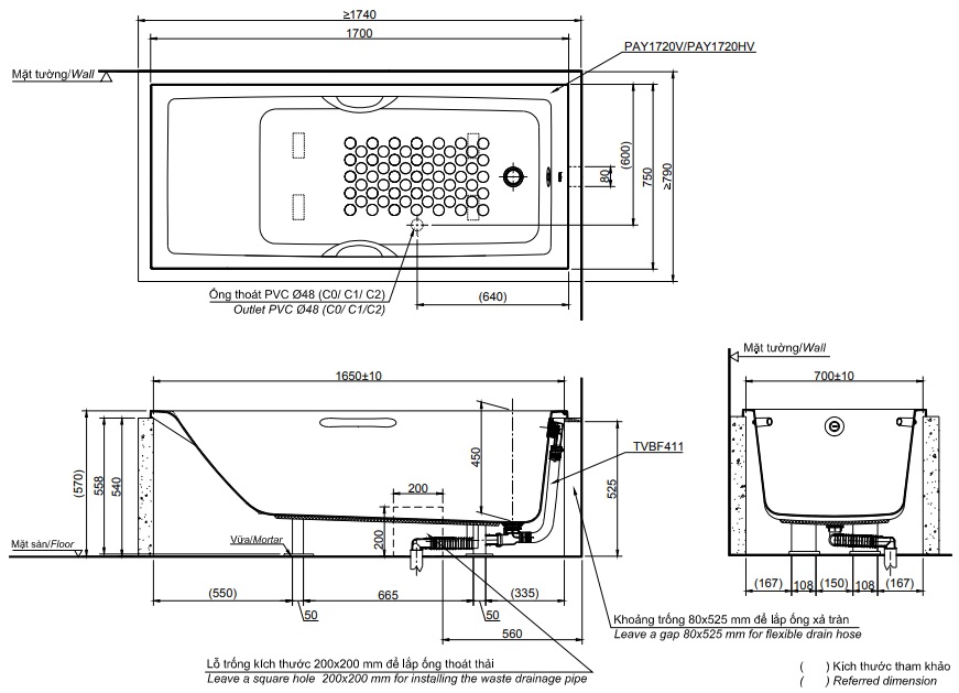
Bản vẽ kích thước TOTO PAY1720HV/TVBF411 – Bồn tắm xây

Hình ảnh, video thực tế TOTO PAY1720HV/TVBF411 – Bồn tắm xây
Đang cập nhật…













1 đánh giá cho TOTO PAY1720HV/TVBF411 – Bồn tắm xây
Chưa có đánh giá nào.