Tính năng TOTO PAY1515HVC#W/TVBF411 – Bồn tắm chân yếm
- Thiết kế hiện đại ,cao cấp sang trọng.
- Tích hợp tay vịn tiện lợi, an toàn
- Bề mặt đáy bồn tắm chống trơn trượt .
- Chất liệu nhựa tổng hợp cao cấp, độ bền cao.
- Thiết kế kèm yếm xung quanh giúp dễ dàng di chuyển vị trí và lắp đặt.
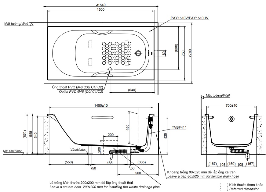
Bản vẽ kích thước TOTO PAY1515HVC#W/TVBF411 – Bồn tắm chân yếm

Hình ảnh, video thực tế TOTO PAY1515HVC#W/TVBF411 – Bồn tắm chân yếm
Đang cập nhật…













1 đánh giá cho TOTO PAY1515HVC#W/TVBF411 – Bồn tắm chân yếm
Chưa có đánh giá nào.