Thông số kĩ thuật TOTO MS625CDW12#XW – Bồn cầu thông minh nắp êm TCF4911EZ
Tính năng nổi bật TOTO MS625CDW12#XW – Bồn cầu thông minh nắp rửa điện tử TCF4911EZ
- Thiết kế trang nhã, sang trọng và hiện đại.
- Nắp rửa cơ hiện đại
- CEFIONTECT Đảm bảo bề mặt bồn cầu được tráng men CEFIONTECT để chống dính và chống bám bẩn, giúp bồn cầu luôn sạch sẽ và dễ dàng vệ sinh.
- RIMLESS: Thiết kế RIMLESS giúp tránh sự tích tụ của vi khuẩn và chất thải, tạo điều kiện cho vệ sinh dễ dàng và hiệu quả hơn.
- TORNADO: Tích hợp công nghệ xả TORNADO với xả xoáy 360 độ để đảm bảo làm sạch hiệu quả, giảm tiếng ồn và tiết kiệm nước.
- WATER-SAVING: Sử dụng công nghệ xả siêu sạch và tiết kiệm nước, chỉ cần 4,5 lít hoặc ít hơn cho mỗi lần xả đại, thể hiện sự quan tâm đến môi trường và tiết kiệm tài nguyên.
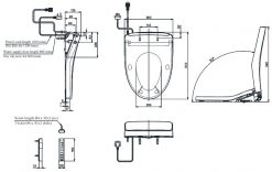
Tính năng nổi bật TOTO TCF4911EZ (W12) – Nắp rửa điện tử
- Dây nguồn và dây cấp nước được ẩn trong thân bồn cầu
- 1 vòi rửa nước ấm 2 chế độ rửa trước và sau
- Vòi rửa có chế độ massage.
- Đầu vòi phun có thể điều chỉnh độ dài.
- Cảm ứng đóng mở khi có người
- Nắp rơi êm, hạn chế tiếng ồn.
- Tích hợp hệ thống quạt gió với màng lọc carbon hoạt tính khử sạch mùi
- Sau khi rửa được sấy khô bằng gió ấm
- Tính năng sưởi ấm bệ ngồi.
- Tích hợp đèn chiếu sáng nhẹ
- Hệ thống bảng điều khiển không dây tiện lợi
- EWATER+ : Tính năng phun sương khử khuẩn lòng bồn cầu và rửa vòi phun.
- Nắp và bệ ngồi sử dụng vật liệu kháng khuẩn
- Nắp bệt dễ dàng tháo rời lắp đặt.
- Tiết kiệm điện năng .
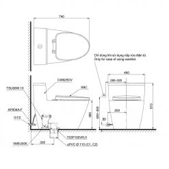
Bản vẽ kĩ thuật TOTO MS625CDW12#XW – Bồn cầu thông minh nắp rửa điện tử TCF4911EZ













































Đánh giá
Chưa có đánh giá nào.