Tính năng TOTO LT950C – Chậu rửa mặt lavabo đặt bàn
- Thiết kế chậu sang trọng hiện đại.
- Lỗ thoát tràn tích hợp trên thân chậu
- Chất liệu sứ cao cấp được nung ở nhệt độ cao tăng độ bền của chậu.
- Bề mặt sứ của chậu được phủ men siêu mịn.
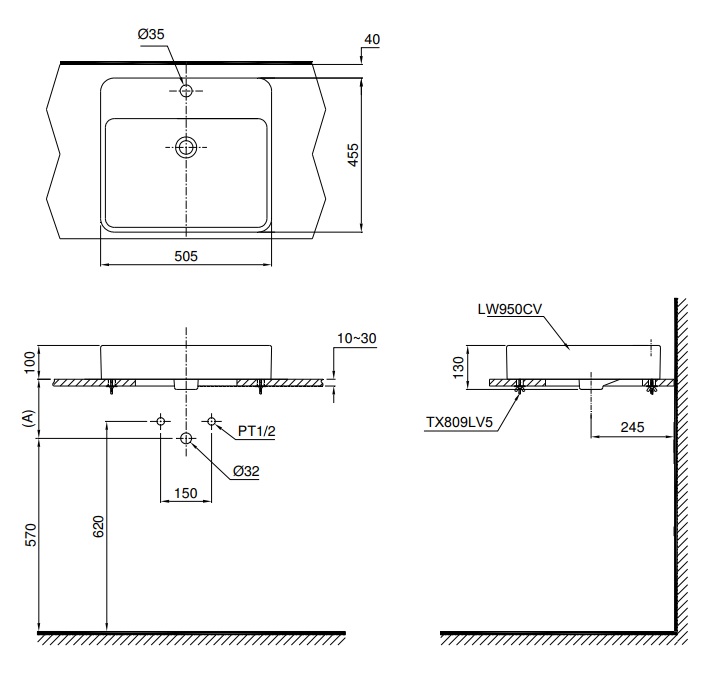
Bản vẽ kích thước TOTO LT950C – Chậu rửa mặt lavabo đặt bàn

Hình ảnh, video thực tế TOTO LT950C – Chậu rửa mặt lavabo đặt bàn
Đang cập nhật…















1 đánh giá cho TOTO LT950C – Chậu lavabo đặt bàn
Chưa có đánh giá nào.