Tính năng TOTO LT548 – Chậu rửa mặt lavabo âm bàn
- Tích hợp lỗ chống tràn tiện lợi.
- Chất liệu sứ cao cấp được nung ở nhệt độ cao tăng độ bền của chậu.
- CEFIONTECT: Bề mặt chậu được phủ lớp men công nghệ độc quyền giúp bề mặt siêu mịn.
- Kiểu dáng âm bàn hiện đại, dễ vệ sinh.
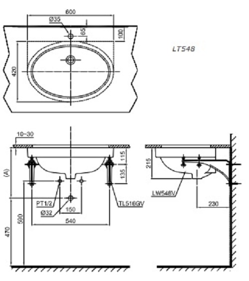
Bản vẽ kích thước TOTO LT548 – Chậu rửa mặt lavabo âm bàn

Hình ảnh, video thực tế TOTO LT548 – Chậu rửa mặt lavabo âm bàn
Đang cập nhật…













1 đánh giá cho TOTO LT548 – Chậu lavabo âm bàn
Chưa có đánh giá nào.