Tính năng TOTO CS767E2 – Bồn cầu 2 khối nắp rửa cơ TCW07S
Đang cập nhật…
Tính năng TOTO TCW07S (E2) – Nắp bồn cầu rửa cơ
- 01 vòi nước lạnh,1 chế độ rửa.
- Nước phun hoà trộn với bọt khí.
- Nắp bồn cầu rơi êm giảm tiếng ồn.
- Tự động làm sạch vòi rửa trước và sau khi sử dụng.
- Dễ dàng tháo lắp.
- Không tiêu thụ điện năng trong khi sử dụng : ECO-WASHER
- Thiết kế mỏng nhẹ .
- Nắp làm bằng chất liệu nhựa cao cấp
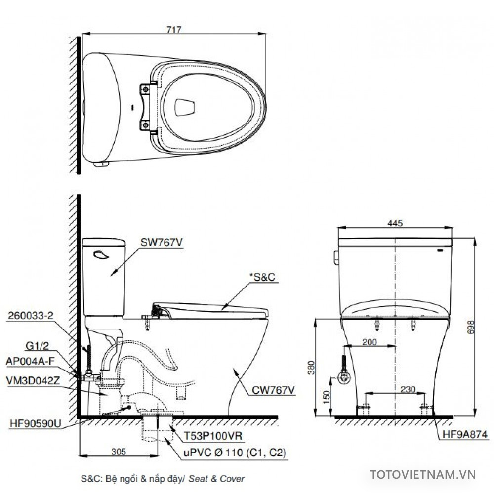
Bản vẽ kích thước TOTO CS767E2 – Bồn cầu 2 khối nắp rửa cơ TCW07S

Hình ảnh, video thực tế TOTO CS767E2 – Bồn cầu 2 khối nắp rửa cơ TCW07S
Đang cập nhật…













1 đánh giá cho TOTO CS767E2 – Bồn cầu thông minh nắp rửa cơ TCW07S
Chưa có đánh giá nào.