Tính năng TOTO CS761PDW8 – Bồn cầu 2 khối nắp rửa điện tử TCF6632A
Tính năng TOTO CS761PDW8 – Thân bồn cầu 2 khối
- Thiết kế hiện đại ,trang nhã và sang trọng.
- Nắp rửa điện tử TCF6632A
- CEFIONTECT: Bồn cầu được tráng men siêu mịn chống bám bẩn.
- RIMLESS: thiết kế bồn cầu vành kín không góc khuất
- TORNADO: xả xoáy 360 độ siêu sạch, giảm tiếng ồn.
- WATER-SAVING: Công nghệ xả siêu sạch và tiết kiệm nước.
Tính năng TOTO TCF6632A (W8) – Nắp bồn cầu điện tử
- 1 vòi rửa nước ấm 2 chế độ rửa trước và sau
- Vòi rửa có chế độ massage.
- Đầu vòi phun có thể điều chỉnh độ dài.
- Nắp rơi êm, hạn chế tiếng ồn.
- Tự động khử mùi bằng hệ thống quạt gió tích hợp màng lọc carbon hoạt tính
- Sau khi rửa được sấy khô bằng gió ấm
- Tính năng sưởi ấm bệ ngồi.
- Hệ thống điều khiển gắn trên thân nắp bệt
- Tự động rửa vòi phun bằng nước nóng trước và sau khi sử dụng
- Nắp và bệ ngồi sử dụng vật liệu kháng khuẩn
- Nắp bệt dễ dàng tháo rời lắp đặt.
- Tiết kiệm điện năng .
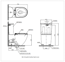
Bản vẽ kích thước TOTO CS761PDW8 – Bồn cầu 2 khối nắp rửa điện tử TCF6632A

Hình ảnh, video thực tế TOTO CS761PDW8 – Bồn cầu 2 khối nắp rửa điện tử TCF6632A
Đang cập nhật…













1 đánh giá cho TOTO CS761PDW8 – Bồn cầu thông minh nắp rửa điện tử TCF6632A
Chưa có đánh giá nào.