Thông số kĩ thuật TOTO CS302DT10#W – bồn cầu 2 khối nắp êm TC395VS
Tính năng nổi bật TOTO CS302DT10#W – Bồn cầu 2 khối nắp êm TC395VS
- Bồn cầu này có kích thước nhỏ gọn và được thiết kế sao cho tối ưu hóa việc sử dụng không gian trong phòng tắm.
- Nắp bồn cầu có tính năng đóng mở êm dịu, giúp giảm tiếng ồn và tạo ra trải nghiệm thoải mái trong quá trình sử dụng.
- Hệ thống xả Siphon được thiết kế với khả năng xả siêu mạnh, đảm bảo việc loại bỏ chất bẩn và xả sạch trong mỗi lần sử dụng.
- WATER-SAVING: CCông nghệ xả siêu sạch và tiết kiệm nước cho phép sử dụng chỉ 4,8 lít hoặc mức nước nhỏ hơn để thực hiện mỗi lần xả đại. Điều này giúp giảm tiêu thụ nước và bảo vệ môi trường.
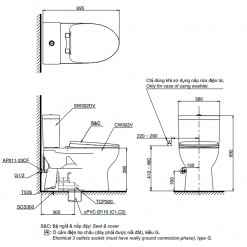
Bản vẽ kĩ thuật TOTO CS302DT10#W – Bồn cầu 2 khối nắp êm TC395VS

Hình ảnh thực tế Bồn cầu 2 khối TOTO CS302DT10#W nắp êm TC395VS






























Đánh giá
Chưa có đánh giá nào.