Tính năng AMERICAN STANDARD VF-2530S – Bồn cầu 1 khối nắp Rửa Cơ
- Chiều cao tối ưu
- Tiết kiệm nước nhưng vẫn đảm bảo xả sạch
- 2 chế độ xả tiết kiệm nước
- Tính năng vệ sinh – nắp bệt: 2 vòi phun riêng biệt, làm sạch phía sau, điều chỉnh cường độ lực phun
- Tính năng thoải mái – nắp bệt: Bệ ngồi thiết kế công thái học thoải mái
- Tính năng tiện ích – nắp bệt: dễ dàng tháo lắp, nắp rơi êm
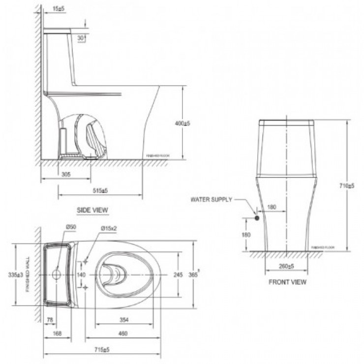
Bản vẽ kích thước AMERICAN STANDARD VF-2530S – Bồn cầu 1 khối nắp Rửa Cơ














1 đánh giá cho AMERICAN STANDARD VF-2530S – Bồn cầu thông minh nắp rửa cơ
Chưa có đánh giá nào.